AG超玩会

> 新闻中心 > 企业要闻 >

企业要闻
  • 中标喜讯
  • 宣布时间:2022-01-17 10:21:31  泉源:AG超玩会  点击数目:
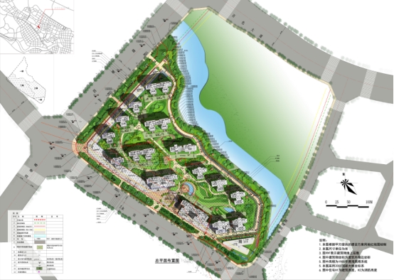
  •   克日,AG超玩会乐成中标百东·馨园项目Ⅱ标、Ⅲ标施工总承包工程,其中百东·馨园项目Ⅱ标中标条约金额30482.78万元,工期710日历天;百东·馨园项目Ⅲ标中标条约金额23671.31万元,工期710日历天。

      百东·馨园项目Ⅱ标、Ⅲ标位于百色市百东新区BD04-01-01地块。项目总修建面积约21.75万㎡,主要施工内容包括项目修建装置工程、土石方工程、边坡支护工程、桩基工程、修建装饰装修工程、水电工程、消防工程等。(修建公司投资生长部 文/图)

    AG超玩会电竞俱乐部(中国区)·集团

    图一:百东·馨园项目效果图
    AG超玩会电竞俱乐部(中国区)·集团

    图二:百东·馨园项目鸟瞰图
    AG超玩会电竞俱乐部(中国区)·集团

    图三:百东·馨园项目总平面安排图

联系AG超玩会|版权声明|诚聘英才|网站地图|在线视察
网站地图